店舗
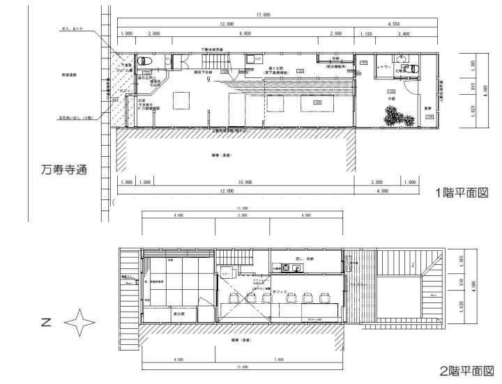
万寿寺通堅田町店舗



- 月額賃料
- 275,000円(税込)
- 所在階
- 一棟(1階‐2階)
- 所在地
- 京都市下京区万寿寺柳馬場西入堅田町567番地
- 交通
- 京都市営地下鉄 五条駅
- 面積
- 24.39坪(登記面積)
- 入居可能日
- 2025年12月1日
- ココがおすすめ
- 万寿寺通面す 町家物件 飲食店相談可 現状有姿渡し 雨漏り等屋根補修工事中(11月末完了予定)
- 面積
- 24.39坪(登記面積)
- 共益費
- ー
- 敷金
- ー
- 礼金
- ー
- 保証金
- 1,000,000円
- 更新料
- ー
- 返還率
- 3年未満0% 5年未満50% 10年未満80% 10年満了100%
- 築年
- 不詳
- 構造
- 木造2 階建て
- 契約期間
- 定期建物賃貸借契約 10年間
- その他
- 家賃保証会社加入要す 町内会費別途加入要す